고밀개발 가능하고 노후도 요건 낮아
“용산개발 연계 가치 상승 기대”

서울 용산구 일대에 역세권 시프트 사업이 속도를 내고 있다. 역세권 시프트는 용적률이 크게 완화돼 고층 개발이 가능하다는 장점이 있다. 이에 효창동 일대와 원효로1가 일대가 향후 대규모 단지 효과를 누릴 것으로 보인다.
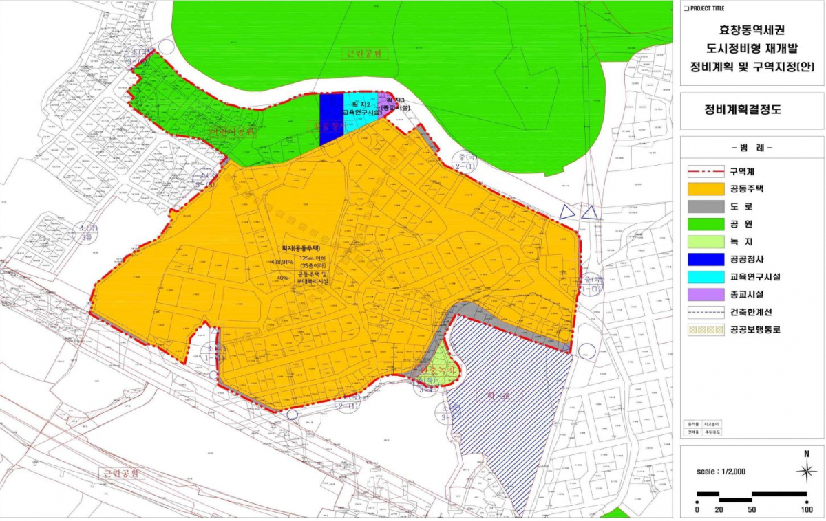
11일 용산구에 따르면 ‘효창동 역세권 도시정비형 재개발사업정비구역 지정 및 정비계획안’ 주민 공람공고를 18일까지 진행한다. 이 구역은 앞서 4월 재개발을 위해 개발행위 허가제한에 들어갔다. 공람공고 이후 서울시 도시계획위원회 심의를 거쳐 정비구역으로 지정된다.
이 사업은 용산구 효창동 5-307번지 일대 9만332㎡ 부지에 용적률 438%를 적용해 지상 35층, 전체 3342가구의 대단지를 짓는 프로젝트다. 분양주택 1938가구, 공공임대 858가구, 임대주택 502가구, 기부채납 44가구가 공급된다.
이곳이 높은 용적률을 얻을 수 있었던 이유는 역세권 시프트를 적용했기 때문이다. 역세권 시프트는 역세권 지역에 용적률을 최대 500%까지 올려주는 대신 물량 일부를 장기전세주택 등 공공임대주택으로 제공하는 사업을 말한다. 효창동 일대는 기존에 제1·2·3종 일반주거지역으로 구성됐지만, 역세권 시프트로 1차 역세권에 포함되면서 전체 지역의 약 77%가 준주거지역으로 종상향됐다.
효창동 인근 ‘원효로1가 역세권 도시정비형 재개발사업’도 정비구역 지정을 코앞에 두고 있다.
해당 사업은 원효로1가 82-1번지 일대 9만4115㎡에 지상 최고 35층, 3316가구의 대단지를 짓는 공사다. 앞서 지난달 6일부터 이달 7일까지 정비구역 지정 및 정비계획 수립을 위한 주민 공람공고를 마쳤다.
이곳은 제2종 일반주거지역 6만9184㎡와 제3종 일반주거지역 1만2167㎡ 대부분이 준주거지역으로 종상향하면서 전체 사업지의 88% 이상에서 용적률이 완화됐다. 용적률을 479.7%를 적용하는 대신 공급 물량의 34.5%(1410가구)를 공공임대주택으로 공급한다.
이처럼 최근 용산구 일대에서 역세권 시프트 사업이 탄력을 받는 모양새다. 용적률 인센티브로 고밀 개발이 가능할 뿐만 아니라 노후도 요건도 상대적으로 낮아서다. 역세권 시프트는 노후도 기준이 60%로, 공공재개발(75%)이나 신속통합기획(67%) 등보다 낮다. 이에 다른 사업에서 역세권 시프트로 전환하기도 한다.
실제로 원효로1가는 2020년 공공재개발을 추진하려 했으나 노후도 요건을 충족하지 못해 탈하고, 역세권 시프트로 전환했다. 용산구 서계동 일대를 개발하는 ‘서울역2 역세권 도시정비형 재개발사업’도 2007년 뉴타운 후보지 지정 해제 이후 지난해 신속통합기획과 공공재개발 등을 추진하려 했지만 탈락했다. 이후 역세권 시프트로 변경, 5월 주민대표회의 기구를 결성하고 사업을 추진하고 있다.
효창동 H공인 관계자는 “이 일대는 수요가 높은 역세권 지역이고, 인근 원효로1가에서도 재개발이 추진되는 만큼 향후 대단지 프리미엄을 공유할 수 있는 장점이 있다”며 “여기에 대통령 집무실 이전, 용산공원 개발 등 여러 호재도 있어 가치는 더 커질 것”이라고 했다.




